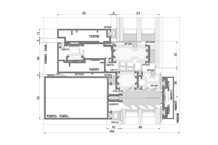
Ponzio PF 152 sistēma ar siltumizolāciju. Ponzio PE 152 sistēmā var izmantot stikla paketes vai paneli ar biezumu līdz 66 mm. Profila sistēma ļauj izgatavot ārējās piekārtās stiklotās fasādes. Var tikt izgatavota konstrukcijas ar ugunsdrošības klasi EI60.
Siltuma koeficients profiliem: Uf=0,69 W/m2k, ja stikla biezums ir 48mm un vairāk.
Virsmas apdare – RAL krāsas, krāsots ar koksnes imitāciju, anodēts pārklājums: dabisks alumīnijs, olīvu, šampanietis, zelts, vecs zelts, brūns.


