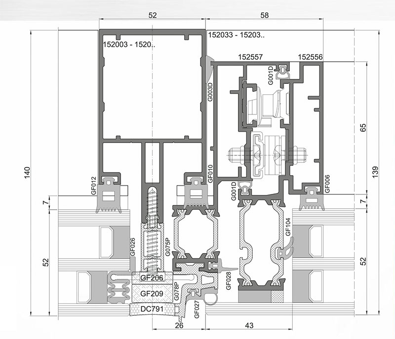
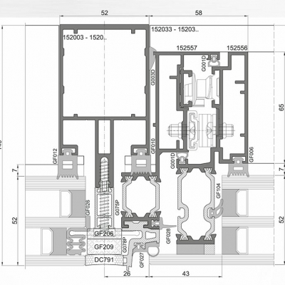
Ponzio PF 152ESG sistēma ar siltumizolāciju. Ponzio PF 152ESG sistēmā var izmantot stikla paketes vai paneli ar biezumu līdz 61 mm. Profila sistēma ļauj izgatavot ārējās piekārtās stiklotās fasādes. Var tikt izgatavota konstrukcijas ar ugunsdrošības klasi EI60. Strukturālais stiklojums - konstrukcijas ārpusē netiek izmantots alumīnija profils, bet pilnstikla virsma.
Siltuma koeficients profiliem: Uf=1,3 W/m2k.
Virsmas apdare – RAL krāsas, krāsots ar koksnes imitāciju, anodēts pārklājums: dabisks alumīnijs, olīvu, šampanietis, zelts, vecs zelts, brūns.


