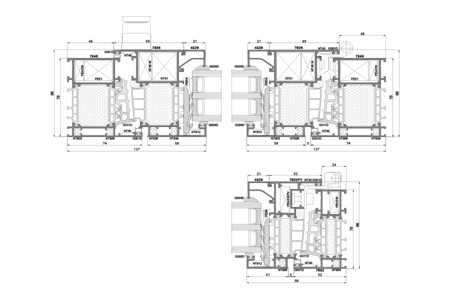
Ponzio PE 78 profilu sistēma ar siltumizolāciju. Konstruktīvais profilu iebūves dziļums rāmjiem sastāda 78 mm, bet vērtnēm 86 mm. Ponzio PE 78 sistēmā var izmantot stikla paketes vai paneli ar biezumu līdz 61 mm. Tā ļauj izgatavot liela gabarīta konstrukcijas ar pastiprinātajiem alumīnija profiliem.
Siltuma koeficients profiliem: Uf=0,9 W/m2k. Gatavai konstrukcijai ar šo iespējams sasniegt līdz pat 0,7 W/m2k.
Virsmas apdare – RAL krāsas, krāsots ar koksnes imitāciju, anodēts pārklājums: dabisks alumīnijs, olīvu, šampanietis, zelts, vecs zelts, brūns.
Šo sistēmu pārsvarā izmanto augstas energoefektivitātes ēkās.
-
Uf0,9 W/m2k siltumcaurlaidība logam
-
Uw0,7 W/m2k siltumcaurlaidība rāmim


