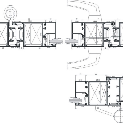
Ponzio PT 50 vienkameru profilu sistēma bez siltumizolācijas. Konstruktīvais profilu iebūves dziļums rāmjiem un vērtnēm sastāda 52 mm. Ponzio PT 50 logu sistēmu var izmantot stikla paketes vai paneli ar biezumu līdz 27 mm.
Virsmas apdare – RAL krāsas, krāsots ar koksnes imitāciju, anodēts pārklājums: dabisks alumīnijs, olīvu, šampanietis, zelts, vecs zelts, brūns.
Šo sistēmu izmanto iekštelpās - starpsienu vai starptelpu durvju izveidē.


