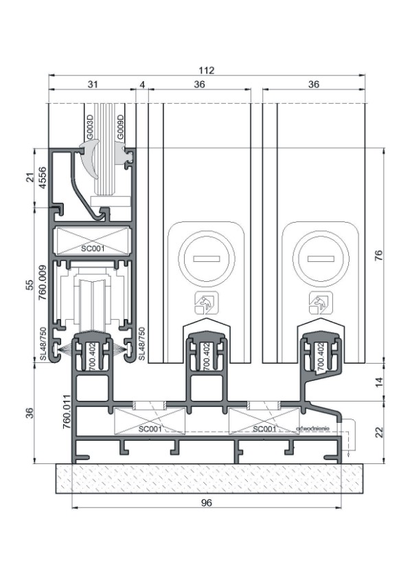
Ponzio 600TT EVO bīdāmā alumīnija sistēma ar siltuma izolāciju. Ponzio 600TT EVO sistēmā izmanto stikla paketes ar biezumu līdz 30 mm.
Siltuma koeficients profiliem: Uf=1,1 W/m2k.
Virsmas apdare – RAL krāsas, krāsots ar koksnes imitāciju, anodēts pārklājums: dabisks alumīnijs, olīvu, šampanietis, zelts, vecs zelts, brūns.


