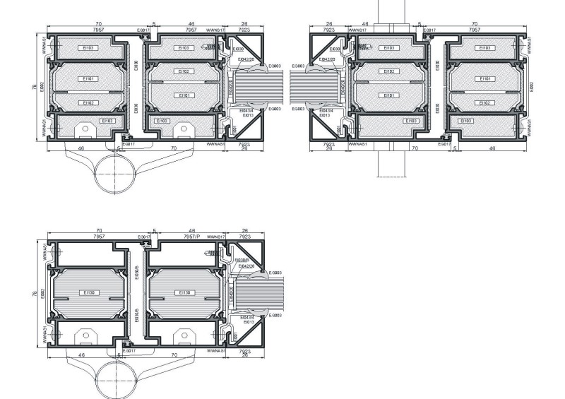
Ponzio PE 78EI alumīnija ugunsdrošā sistēma ar siltuma izolāciju. Ponzio PE 78EI sistēmā izmanto stikla paketes ar biezumu līdz 54 mm.
Virsmas apdare – RAL krāsas, krāsots ar koksnes imitāciju, anodēts pārklājums: dabisks alumīnijs, olīvu, šampanietis, zelts, vecs zelts, brūns.


